Contemporary Elegance Meets Versatile Living
Step into a residence where modern comfort, space and versatility come together seamlessly. Designed for effortless living and exceptional functionality, this beautifully presented home offers refined interiors, multiple living zones and a rare garage conversion ideal for a home business or studio setup.
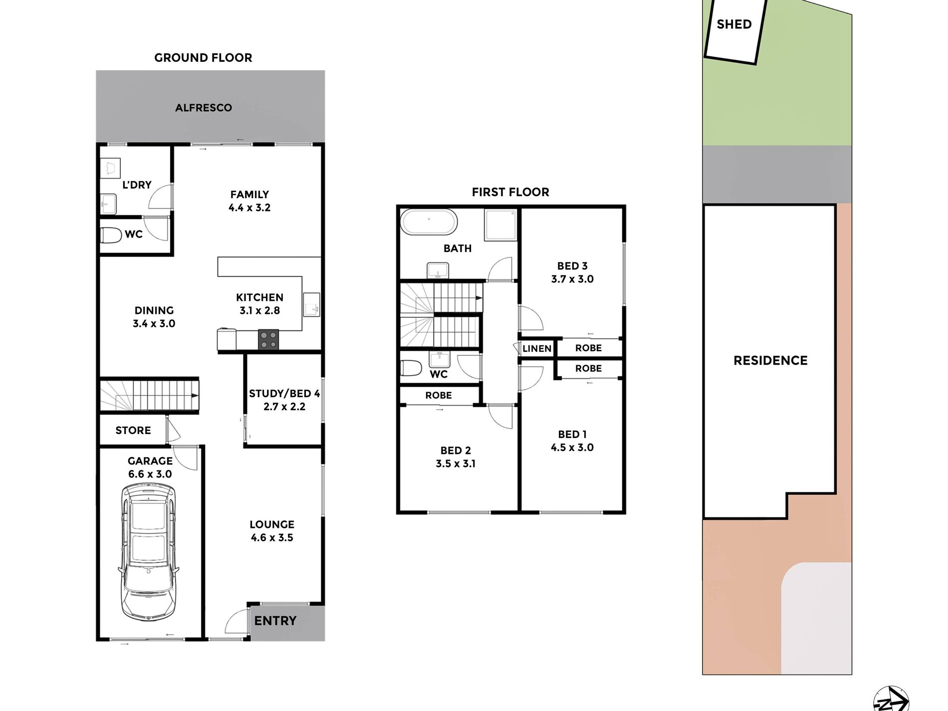
From the moment you enter, you’re welcomed by a thoughtfully designed floorplan featuring separate formal and informal living areas, enhanced by tiled flooring throughout for a sleek, low-maintenance finish.
The heart of the home is the stylishly updated kitchen, complete with brand new appliances, perfect for both everyday living and entertaining with ease.
*Downstairs Highlights*
- Elegant formal lounge with split system air conditioning
- Separate dining area ideal for hosting
- Spacious family room with split system air conditioning
- Modern kitchen with brand new appliances
- Downstairs bedroom/study, ideal for guests, teenagers or home office use
- Lock-up garage with split system air conditioning and impressive 3.2m ceiling height
- Ideal for a home business, studio or additional workspace
- Stylish tiled flooring throughout
*Upstairs Accommodation*
- Three generously sized bedrooms, all featuring: Built-in wardrobes , Ceiling fans, Split system air conditioning
- Contemporary bathroom with indulgent jacuzzi spa bath
- Separate toilet for added convenience
This home is perfect for families, professionals or buyers seeking a flexible layout with premium inclusions and standout functionality.
A rare opportunity to secure a modern, move-in-ready home with luxury touches and versatile living options.
Disclaimer: the above information has been gathered from sources that we believe are reliable. However, we cannot guarantee the accuracy of this information. And nor do we accept responsibility for its accuracy. Any interested parties should rely on their own inquiries and judgement to determine the accuracy of this information for their own purposes. Images are for illustrative and design purposes only and do not represent the final product or finishes.
Features
- Air Conditioning
- Split-System Air Conditioning
- Split-System Heating
- Fully Fenced
- Outdoor Entertainment Area
- Remote Garage
- Secure Parking
- Shed
- Built-in Wardrobes
- Dishwasher
- Floorboards
- Solar Panels



































