Positioned on a prized corner block in one of Greystanes’ most sought-after pockets, 8 Thora Street presents an outstanding opportunity to secure a well appointed family home with exceptional future potential.
Designed for comfortable living and effortless entertaining, the residence offers a versatile layout featuring a formal lounge room complemented by a separate dining area, providing defined spaces ideal for both everyday living and hosting guests.
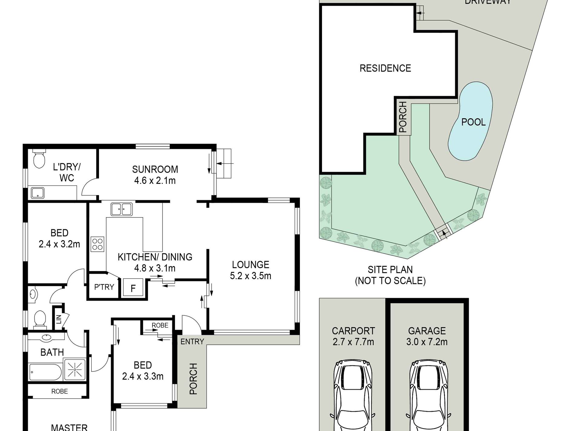
The home comprises three generous bedrooms, including a main bedroom with built-in wardrobe, and is enhanced by ducted air conditioning with two zones, ensuring year-round comfort. A modern kitchen equipped with natural gas cooking and a dishwasher seamlessly connects to the main living areas, while tiled flooring throughout adds a sense of durability and low-maintenance appeal.
Outdoors, the property is complemented by a private swimming pool, ideal for family enjoyment and entertaining. The side access further enhances practicality and flexibility, particularly for additional vehicles, storage, or future development considerations. Additional features include an internal laundry with a second toilet, a lock-up garage, and ample on site parking.
Importantly, the property also offers future granny flat or duplex potential (STCA), with the corner block and side access combination significantly strengthening its development appeal.
Conveniently located close to local schools, shops, parks, and transport links, this residence delivers a compelling blend of lifestyle, convenience, and long-term value.
Property Features:
- Prime corner block with side access
- Three bedrooms, main with built-in wardrobe
- Formal lounge and separate dining area
- Modern kitchen with natural gas & dishwasher
- Ducted air conditioning (2 zones)
- Internal laundry with second toilet
- Tiled flooring throughout
- Lock-up garage plus additional car accommodation
- Private swimming pool
- Granny flat and duplex potential (STCA)
A rare opportunity offering immediate comfort and outstanding future potential in a premium Greystanes location.
Disclaimer: the above information has been gathered from sources that we believe are reliable. However, we cannot guarantee the accuracy of this information. And nor do we accept responsibility for its accuracy. Any interested parties should rely on their own inquiries and judgement to determine the accuracy of this information for their own purposes. Images are for illustrative and design purposes only and do not represent the final product or finishes.
Features
- Air Conditioning
- Ducted Cooling
- Ducted Heating
- Deck
- Fully Fenced
- Secure Parking
- Swimming Pool - In Ground
- Built-in Wardrobes

























